D e s i g n E n v e l o p e . c o m
                                                               by William Edward Summers, Inc.

 

New Projects

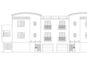
Dogtown Residences, Oakland, California

   

Location:
Oakland, California

Project:
To design a new mulit-unit residential building in the emerging artist's neighbourhood, called "Dogtown" in Oakland.

 
 

    Solution:
The building was designed as a blend of Victorian and the warehouse aesthetics. Ground floor wall space allows for future graffiti.